habitação
habitação
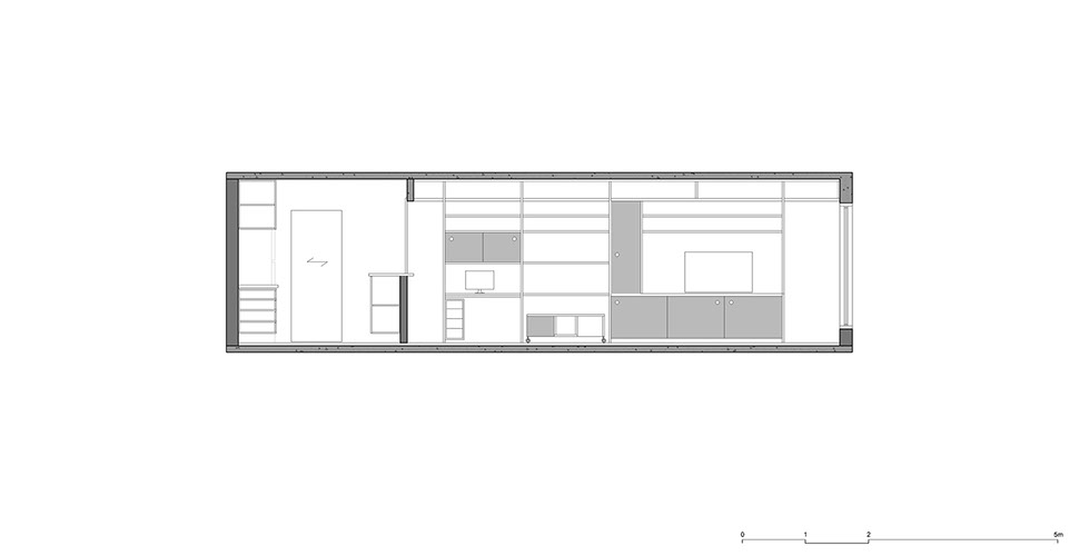
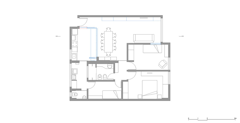
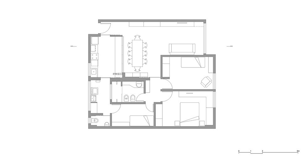
apartamento capote valente | 2008 / 2014 | pinheiros, sp
industrial
expografia
concursos
urbanismo
patrimônio histórico
serviços
institucional
Rua São Vicente de Paulo 95 cj 124 | Santa Cecília | CEP 01229-010 | São Paulo SP Brasil | epaulistano@epaulistano.com.br