concursos

concursos

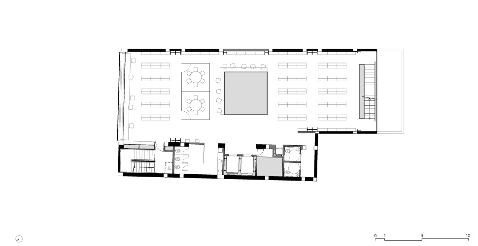
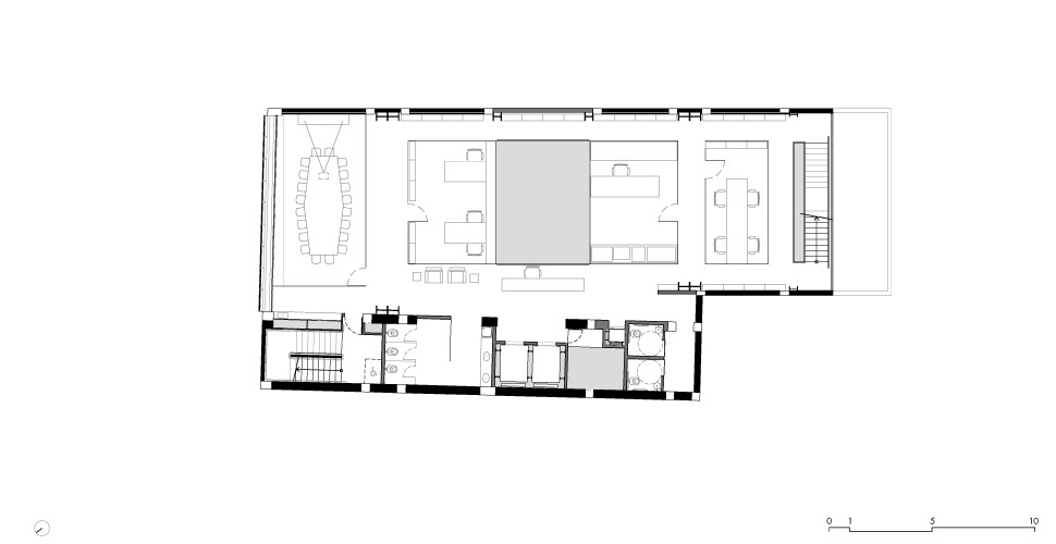
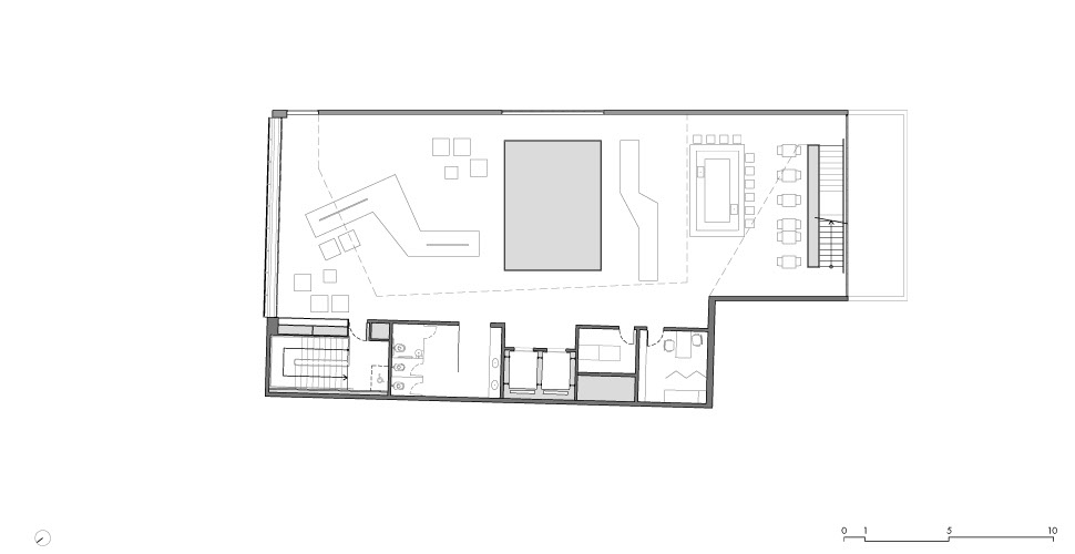
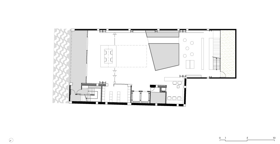
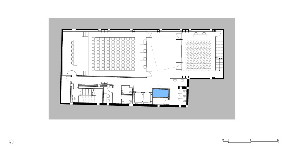
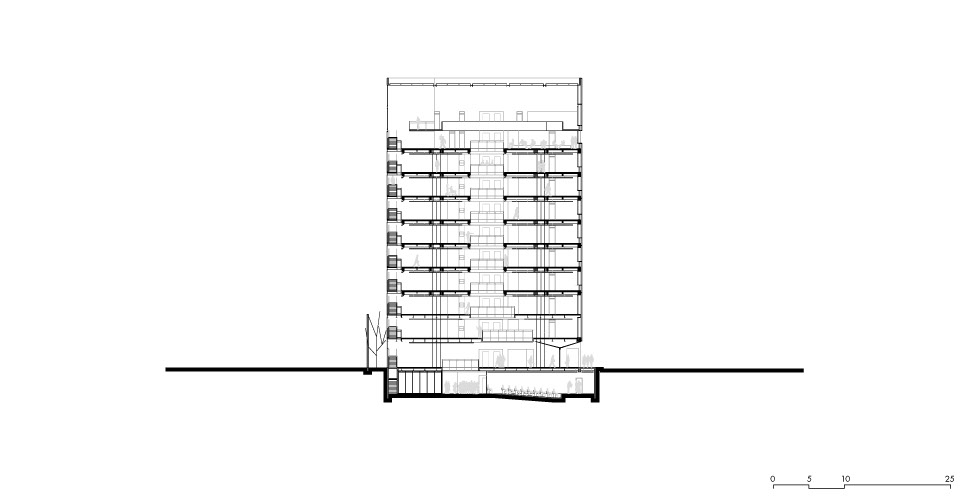
Biblioteca da Faculdade de Direito São Francisco |

2013| São Paulo, SP

industrial

expografia

urbanismo

patrimônio histórico

serviços

institucional

habitação

Rua São Vicente de Paulo 95 cj 124 | Santa Cecília | CEP 01229-010 | São Paulo SP Brasil | epaulistano@epaulistano.com.br