projetos
publicações
sobre
contato
patrimônio histórico
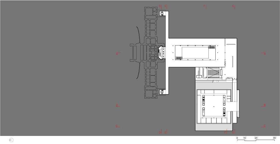
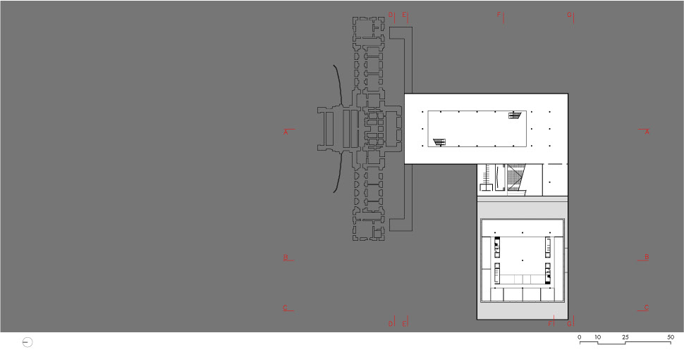
Museu Paulista |2005| São Paulo, SP
industrial
expografia
concursos
urbanismo
serviços
institucional
habitação
texto
imagens
Rua São Vicente de Paulo 95 cj 124 | Santa Cecília | CEP 01229-010 | São Paulo SP Brasil | epaulistano@epaulistano.com.br