concursos
concursos
Expansão do Museu do Meio Ambiente | 2010 | Rio de Janeiro, RJ
industrial
expografia
urbanismo
patrimônio histórico
serviços
institucional
habitação
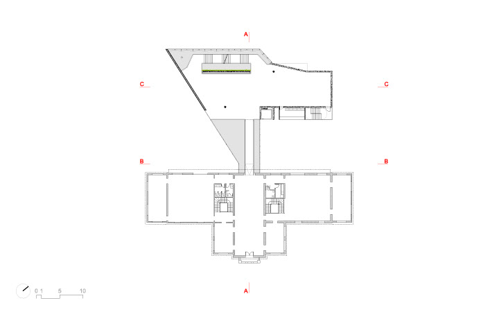
Implantação
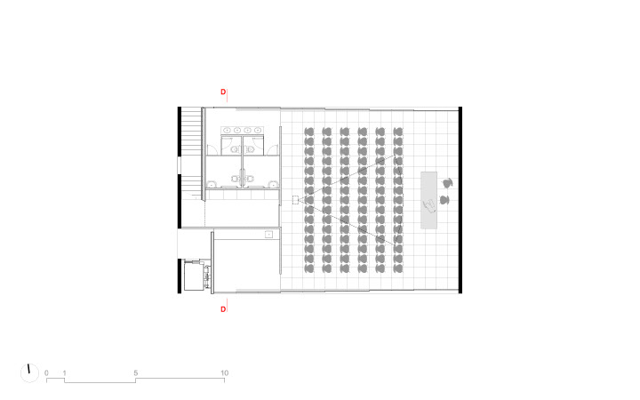
MuMA Exposições - Térreo
MuMA Exposições - Primeiro pavimento
MuMA Exposições - Segundo pavimento
MuMA Exposições - Terceiro pavimento
MuMA Exposições - Cobertura e Terraço
MuMA Exposições - Corte AA
MuMA Exposições - Corte BB
MuMA Exposições - Corte CC
MuMA Exposições - Fachada sudoeste
MuMA Exposições - Fachada nordeste
MuMA Exposições - Fachada noroeste
MuMA Administração - Térreo
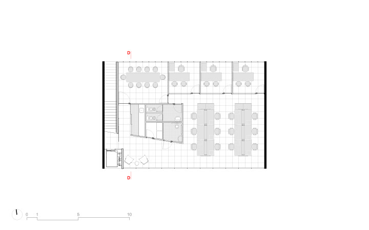
MuMA Administração - Primeiro pavimento
MuMA Administração - Cobertura
MuMA Administração - Corte DD
MuMA Administração - Fachada leste
MuMA Administração - Fachada oeste
MuMA Administração - Fachada sul
Rua São Vicente de Paulo 95 cj 124 | Santa Cecília | CEP 01229-010 | São Paulo SP Brasil | epaulistano@epaulistano.com.br