industrial
industrial
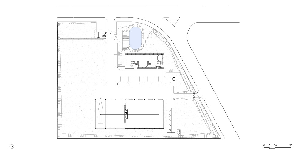
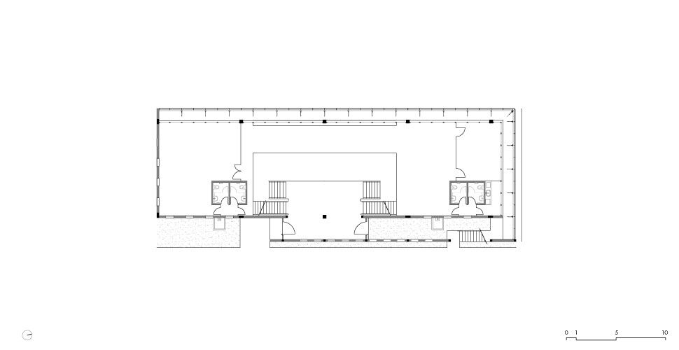
novotex sul americana | 2008| araras, sp
expografia
concursos
urbanismo
patrimônio histórico
serviços
institucional
habitação
Rua São Vicente de Paulo 95 cj 124 | Santa Cecília | CEP 01229-010 | São Paulo SP Brasil | epaulistano@epaulistano.com.br