projetos
publicações
sobre
contato
concursos
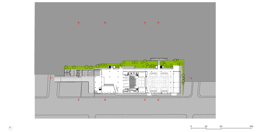
Sesc Franca | 2012| Franca, SP
industrial
expografia
urbanismo
patrimônio histórico
serviços
institucional
habitação
texto
imagens
Rua São Vicente de Paulo 95 cj 124 | Santa Cecília | CEP 01229-010 | São Paulo SP Brasil | epaulistano@epaulistano.com.br