projetos
publicações
sobre
contato
institucional
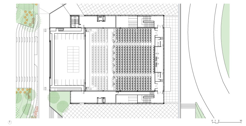
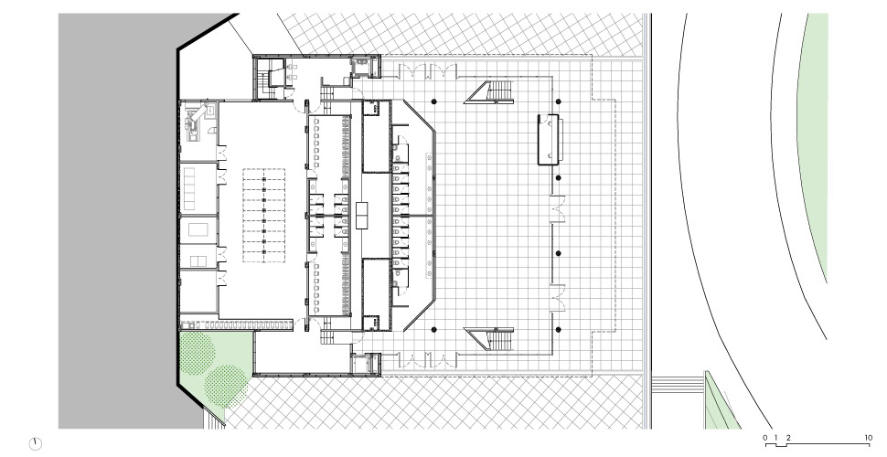
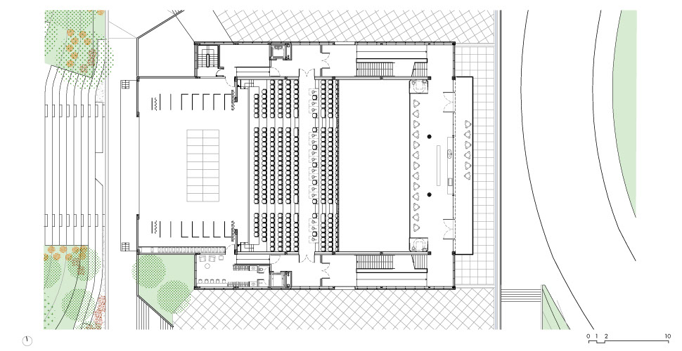
Teatro Municipal de Amparo | 2015 |Amparo, SP
industrial
expografia
concursos
urbanismo
patrimônio histórico
serviços
habitação
texto
imagens
Rua São Vicente de Paulo 95 cj 124 | Santa Cecília | CEP 01229-010 | São Paulo SP Brasil | epaulistano@epaulistano.com.br